
Proyecto de remodelación de planta baja y ampliación de planta alta para casa habitación.
.jpeg/:/cr=t:16.67%25,l:0%25,w:100%25,h:66.67%25/rs=w:600,h:300,cg:true)
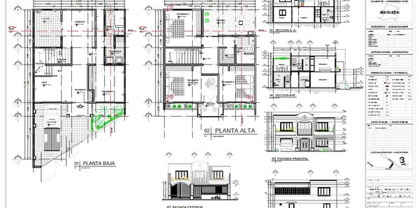
Se trata de una construcción de una planta, con un solo cuarto de baño, que por su ubicación implica el paso dentro de una de las habitaciones, lo que condiciona su uso, disminuyendo las áreas de descanso y privacidad dentro del diseño original. Derivado de las necesidades del cliente el programa arquitectónico incluye 3 recamaras en planta alta, 1 baño completo, cuarto de lavado y las escaleras, la principal preocupación del cliente es la ubicación de las nuevas escaleras y el funcionamiento del cuarto de baño dada la experiencia negativa que tiene con el funcionamiento del proyecto original.

Las principales características de este proyecto son muros de ladrillo con acabados lisos o texturizados en color blanco, hermosos balcones y terrazas; puertas, ventanas y arcos enmarcados por detallados labrados en cantera o simulados. Características propias del estilo neocolonial californiano.

En planta baja se hizo una re distribución, con la finalidad de mejorar la circulación y el funcionamiento general del proyecto, para poder incorporar el área de las escaleras y el cuarto de lavado, de tal forma que la relación entre los componentes del programa arquitectónico permitiera el uso individual y especifico de los espacios. En cuanto a la planta alta, logramos la interacción de 3 recamaras, 1 balcón, un baño y una terraza que coincidieran con los muros de la planta baja, lo cual nos permitirá bajar los costes de construcción utilizando un sistema a base de albañilería confinada (muros de carga), en cuanto a las necesidades del cliente, logramos cumplir con sus expectativas y requerimientos de diseño en fachada, distribución de los espacios y funcionalidad.

Usamos cookies para analizar el tráfico del sitio web y optimizar tu experiencia en el sitio. Al aceptar nuestro uso de cookies, tus datos se agruparán con los datos de todos los demás usuarios.